遠雄商舟黃金地段店面出租,成就您的品牌夢!1,168,766元/月
設計理念
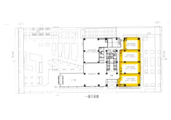
⭐北投士林科技園區| 多間黃金店面出租 86坪 , 79坪 , 79.1坪 , 63坪 共計307坪
⭐車位:11個
⭐交通方便: -3分鐘洲美快速道路、15分鐘環河快速道路 -10分鐘國道1號 -10線公車接駁捷運芝山、明德、士林站
空間性質
押金二個月 178.64坪 使用坪數 1F / 18F 樓層 辦公樓配套
座落位置
台北市 遠雄商舟· 北投區福美路
建物面積
179坪
室內格局
主要材料
Share
都市語彙 複合機能
台北市, 文山區, 20坪
上一篇
東方美學 精緻品味
台北市, 南港區, 24坪
下一篇
TOP