本案特色
1.屋況好免整修可直接入住。
2.格局方正好規劃
3.象山捷運3min交通便利
4.博愛國小、興雅國中為信義區首選的學區
5.地段精華,位於信義計畫區內與豪宅比鄰
6.旁邊有松德公園休憩好輕鬆
1.屋況好免整修可直接入住。
2.格局方正好規劃
3.象山捷運3min交通便利
4.博愛國小、興雅國中為信義區首選的學區
5.地段精華,位於信義計畫區內與豪宅比鄰
6.旁邊有松德公園休憩好輕鬆
時代廣場美3房 2999萬
設計理念
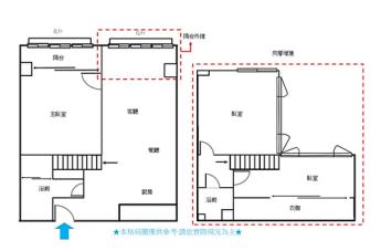
空間性質
屋齡 28年 權狀坪數坪 30.34坪 樓層 9F/12F 朝向坐北朝南
座落位置
台北市 信義
建物面積
30坪
室內格局
格局3房2廳2衛1陽台
主要材料
TOP